03-6264-1890
受付時間 9:00 - 18:30 定休日 土日祝
受付時間 9:00 - 18:30 定休日 土日祝
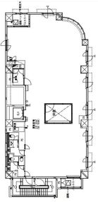
アリビオ九段ビル 9階
物件情報
| 所在地 | 東京都千代田区九段北1丁目6-1 |
|---|---|
| 最寄駅 |
東京メトロ東西線 九段下駅 2分 東京メトロ半蔵門線 神保町駅 6分 |
| 竣工 | 2004年12月 |
| 階数 | 地上9階 / 地下1階 |
| エレベーター | 1基 |
賃貸条件
| 募集区画 | 9階 |
|---|---|
| 賃料 (共益費) | 1,181,818円(賃料に含む) |
| 敷金 /礼金 | 6ヶ月/1ヶ月 |
|
保証金
/敷引/償却 |
-/-/なし |
| 面積 | 64.19坪 |
| 入居条件 | 2026年4月中旬 |