03-6264-1890
受付時間 9:00 - 18:30 定休日 土日祝
受付時間 9:00 - 18:30 定休日 土日祝
登亭銀座ビル 2階
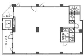
物件情報
| 所在地 | 東京都中央区銀座3丁目13-2 |
|---|---|
| 最寄駅 | 東京メトロ日比谷線 東銀座駅 2分 |
| 竣工 | 1982年6月 |
| 階数 | 地上8階 / 地下1階 |
| エレベーター | 1基 |
賃貸条件
| 募集区画 | 2階 |
|---|---|
| 賃料(共益費) | 624,240円(賃料に含む) |
| 敷金/礼金 | 10ヶ月/なし |
| 保証金 /敷引/償却 | なし |
| 面積 | 34.68坪 |
| 入居条件 | 2026年6月上旬 |
| 所在地 | 東京都中央区銀座3丁目13-2 |
|---|---|
| 最寄駅 | 東京メトロ日比谷線 東銀座駅 2分 |
| 竣工 | 1982年6月 |
| 階数 | 地上8階 / 地下1階 |
| エレベーター | 1基 |
| 募集区画 | 2階 |
|---|---|
| 賃料(共益費) | 624,240円(賃料に含む) |
| 敷金/礼金 | 10ヶ月/なし |
| 保証金 /敷引/償却 | なし |
| 面積 | 34.68坪 |
| 入居条件 | 2026年6月上旬 |