03-6264-1890
受付時間 9:00 - 18:30 定休日 土日祝
受付時間 9:00 - 18:30 定休日 土日祝
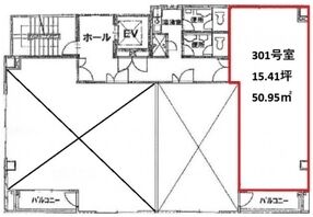
RENEX池袋(旧:日宝池袋第一ビル) 3階301
物件情報
| 所在地 | 東京都豊島区池袋2丁目54-12 |
|---|---|
| 最寄駅 |
JR山手線 池袋駅 6分 |
| 竣工 | 1991年6月 |
| 階数 | 地上7階 / 地下1階 |
| エレベーター | 1基 |
賃貸条件
| 募集区画 | 3階301 |
|---|---|
| 賃料 (共益費) | 308,200円(賃料に含む) |
| 敷金 /礼金 | 6ヶ月/なし |
|
保証金
/敷引/償却 |
-/-/なし |
| 面積 | 15.41坪 |
| 入居条件 | 2026年4月上旬 |