03-6264-1890
受付時間 9:00 - 18:30 定休日 土日祝
受付時間 9:00 - 18:30 定休日 土日祝
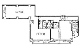
PARKFRONT SHINJUKU(パークフロント新宿) 2階202
物件情報
| 所在地 | 東京都新宿区新宿2丁目8-15 |
|---|---|
| 最寄駅 | 東京メトロ丸ノ内線 新宿御苑前駅 2分 都営新宿線 新宿三丁目駅 5分 JR山手線 新宿駅 11分 |
| 竣工 | 2019年9月 |
| 階数 | 地上12階建て |
| エレベーター | 1基 |
賃貸条件
| 募集区画 | 2階202 |
|---|---|
| 賃料(共益費) | 576,450円(賃料に含む) |
| 敷金/礼金 | 6ヶ月/なし |
| 保証金 /敷引/償却 | -/-/1ヶ月 |
| 面積 | 27.45坪 |
| 入居条件 | 2026年1月下旬 |