03-6264-1890
受付時間 9:00 - 18:30 定休日 土日祝
受付時間 9:00 - 18:30 定休日 土日祝
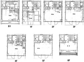
飯田橋MTビル 地下1階~6階
物件情報
| 所在地 | 東京都千代田区飯田橋1丁目11-2 |
|---|---|
| 最寄駅 |
東京メトロ東西線 飯田橋駅 4分 東京メトロ有楽町線 飯田橋駅 5分 JR中央・総武線 飯田橋駅 6分 東京メトロ半蔵門線 九段下駅 6分 |
| 竣工 | 1995年2月 |
| 階数 | 地上6階 / 地下1階 |
| エレベーター | 1基 |
賃貸条件
| 募集区画 | 地下1階~6階 |
|---|---|
| 賃料 (共益費) | 相談(賃料に含む) |
| 敷金 /礼金 | 5ヶ月/1ヶ月 |
|
保証金
/敷引/償却 |
-/-/1ヶ月 |
| 面積 | 102.53坪 |
| 入居条件 | 2026年7月中旬 |