03-6264-1890
受付時間 9:00 - 18:30 定休日 土日祝
受付時間 9:00 - 18:30 定休日 土日祝
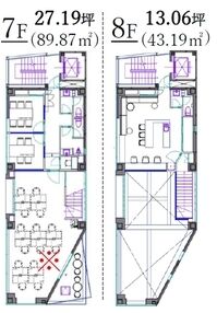
JP-BASE渋谷 7・8階(メゾネット)
物件情報
| 所在地 | 東京都渋谷区東2丁目17-9 |
|---|---|
| 最寄駅 |
JR山手線 恵比寿駅 9分 東急東横線 渋谷駅 11分 |
| 竣工 | 1985年12月 |
| 階数 | 地上8階建て |
| エレベーター | 1基 |
賃貸条件
| 募集区画 | 7・8階(メゾネット) |
|---|---|
| 賃料 (共益費) | 1,569,750円(賃料に含む) |
| 敷金 /礼金 | 相談/なし |
|
保証金
/敷引/償却 |
-/-/なし |
| 面積 | 40.25坪 |
| 入居条件 | 2026年7月上旬 |