03-6264-1890
受付時間 9:00 - 18:30 定休日 土日祝
受付時間 9:00 - 18:30 定休日 土日祝
西新橋JKビル 5階
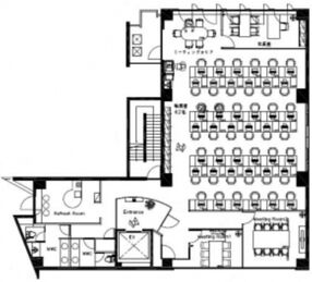
物件情報
| 所在地 | 東京都港区西新橋3丁目15-12 |
|---|---|
| 最寄駅 |
東京メトロ日比谷線 虎ノ門ヒルズ駅 5分 都営三田線 御成門駅 6分 東京メトロ銀座線 虎ノ門駅 8分 |
| 竣工 | 1994年1月 |
| 階数 | 地上9階建て |
| エレベーター | 1基 |
賃貸条件
| 募集区画 | 5階 |
|---|---|
| 賃料 (共益費) | 1,077,230円(251,820円) |
| 敷金 /礼金 | 6ヶ月/なし |
|
保証金
/敷引/償却 |
-/-/なし |
| 面積 | 69.95坪 |
| 入居条件 | 2026年5月上旬 |