03-6264-1890
受付時間 9:00 - 18:30 定休日 土日祝
受付時間 9:00 - 18:30 定休日 土日祝
SPROUT IIDABASHI 8階
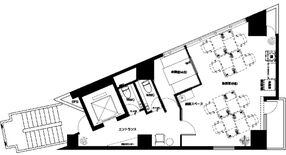
物件情報
| 所在地 | 東京都千代田区飯田橋3丁目11-25 |
|---|---|
| 最寄駅 |
東京メトロ有楽町線 飯田橋駅 1分 |
| 竣工 | 1999年3月 |
| 階数 | 地上9階建て |
| エレベーター | 1基 |
賃貸条件
| 募集区画 | 8階 |
|---|---|
| 賃料 (共益費) | 442,960円(賃料に含む) |
| 敷金 /礼金 | 4ヶ月/なし |
|
保証金
/敷引/償却 |
-/-/なし |
| 面積 | 15.82坪 |
| 入居条件 | 2026年7月下旬 |