03-6264-1890
受付時間 9:00 - 18:30 定休日 土日祝
受付時間 9:00 - 18:30 定休日 土日祝
NOVEL WORK Shinjuku West(旧:OYAビル) 3階
物件情報
| 所在地 | 東京都新宿区西新宿3丁目9-6 |
|---|---|
| 最寄駅 | 京王線 初台駅 5分 都営大江戸線 都庁前駅 10分 JR山手線 新宿駅 10分 |
| 竣工 | 1990年11月 |
| 階数 | 地上9階建て |
| エレベーター | 1基 |
賃貸条件
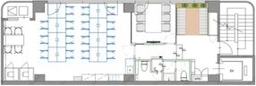
| 募集区画 | 3階 |
|---|---|
| 賃料(共益費) | 775,310円(賃料に含む) |
| 敷金/礼金 | なし/なし |
| 保証金 /敷引/償却 | -/-/なし |
| 面積 | 25.01坪 |
| 入居条件 | 2026年4月上旬 |