03-6264-1890
受付時間 9:00 - 18:30 定休日 土日祝
受付時間 9:00 - 18:30 定休日 土日祝
茅場町駅前ビル 3階
物件情報
| 所在地 | 東京都中央区日本橋茅場町2丁目11-8 |
|---|---|
| 最寄駅 | 東京メトロ日比谷線 茅場町駅 1分 東京メトロ東西線 茅場町駅 3分 |
| 竣工 | 2003年7月 |
| 階数 | 地上9階建て |
| エレベーター | 1基 |
賃貸条件
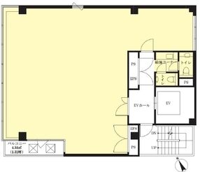
| 募集区画 | 3階 |
|---|---|
| 賃料(共益費) | 相談(賃料に含む) |
| 敷金/礼金 | 相談/なし |
| 保証金 /敷引/償却 | なし |
| 面積 | 31.12坪 |
| 入居条件 | 即入居 |