03-6264-1890
受付時間 9:00 - 18:30 定休日 土日祝
受付時間 9:00 - 18:30 定休日 土日祝
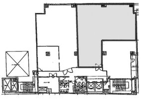
岩崎吉祥寺ビル 3階A
物件情報
| 所在地 | 東京都武蔵野市吉祥寺本町1丁目15-9 |
|---|---|
| 最寄駅 |
京王井の頭線 吉祥寺駅 1分 JR中央本線 吉祥寺駅 1分 JR中央線(快速) 吉祥寺駅 1分 |
| 竣工 | 1984年1月 |
| 階数 | 地上8階 / 地下2階 |
| エレベーター | 2基 |
賃貸条件
| 募集区画 | 3階A |
|---|---|
| 賃料 (共益費) | 1,356,810円(290,745円) |
| 敷金 /礼金 | -/- |
|
保証金
/敷引/償却 |
10ヶ月/-/なし |
| 面積 | 64.61坪 |
| 入居条件 | 2026年7月上旬 |