03-6264-1890
受付時間 9:00 - 18:30 定休日 土日祝
受付時間 9:00 - 18:30 定休日 土日祝
近代グループBLD.3号館(THE KINDAI 3 IKEBUKURO) 6階
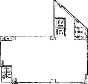
物件情報
| 所在地 | 東京都豊島区南池袋1丁目26-2 |
|---|---|
| 最寄駅 |
JR山手線 池袋駅 2分 |
| 竣工 | 1986年6月 |
| 階数 | 地上6階 / 地下1階 |
| エレベーター | 2基 |
賃貸条件
| 募集区画 | 6階 |
|---|---|
| 賃料 (共益費) | 1,950,000円(260,000円) |
| 敷金 /礼金 | -/1ヶ月 |
|
保証金
/敷引/償却 |
12ヶ月/-/20% |
| 面積 | 65.0坪 |
| 入居条件 | 2026年3月上旬 |