03-6264-1890
受付時間 9:00 - 18:30 定休日 土日祝
受付時間 9:00 - 18:30 定休日 土日祝
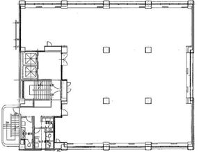
物産ビル 2階
物件情報
| 所在地 | 東京都港区西新橋1丁目4-14 |
|---|---|
| 最寄駅 |
都営三田線 内幸町駅 1分 東京メトロ銀座線 虎ノ門駅 5分 東京メトロ日比谷線 霞ケ関駅 6分 JR山手線 新橋駅 8分 |
| 竣工 | 1982年3月 |
| 階数 | 地上7階 / 地下1階 |
| エレベーター | 2基 |
賃貸条件
| 募集区画 | 2階 |
|---|---|
| 賃料 (共益費) | 相談(相談) |
| 敷金 /礼金 | 相談/- |
|
保証金
/敷引/償却 |
なし |
| 面積 | 24.06坪 |
| 入居条件 | 2026年5月上旬 |