03-6264-1890
受付時間 9:00 - 18:30 定休日 土日祝
受付時間 9:00 - 18:30 定休日 土日祝
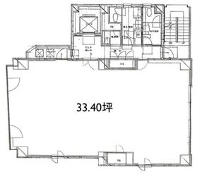
サンライズ三田ビル 4階
物件情報
| 所在地 | 東京都港区芝3丁目16-12 |
|---|---|
| 最寄駅 | 都営三田線 芝公園駅 6分 都営大江戸線 赤羽橋駅 4分 |
| 竣工 | 1991年1月 |
| 階数 | 地上10階 / 地下1階 |
| エレベーター | 1基 |
賃貸条件
| 募集区画 | 4階 |
|---|---|
| 賃料(共益費) | 相談(133,600円) |
| 敷金/礼金 | 12ヶ月/- |
| 保証金 /敷引/償却 | なし |
| 面積 | 33.4坪 |
| 入居条件 | 2026年6月上旬 |