03-6264-1890
受付時間 9:00 - 18:30 定休日 土日祝
受付時間 9:00 - 18:30 定休日 土日祝
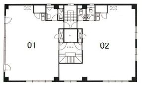
八丁堀共同ビル 5階502
物件情報
| 所在地 | 東京都中央区八丁堀2丁目8-2 |
|---|---|
| 最寄駅 | 東京メトロ日比谷線 八丁堀駅 3分 都営浅草線 宝町駅 7分 東京メトロ東西線 茅場町駅 8分 |
| 竣工 | 1982年4月 |
| 階数 | 地上7階建て |
| エレベーター | 1基 |
賃貸条件
| 募集区画 | 5階502 |
|---|---|
| 賃料(共益費) | 329,640円(賃料に含む) |
| 敷金/礼金 | 3ヶ月/なし |
| 保証金 /敷引/償却 | -/-/なし |
| 面積 | 27.47坪 |
| 入居条件 | 2026年3月上旬 |