03-6264-1890
受付時間 9:00 - 18:30 定休日 土日祝
受付時間 9:00 - 18:30 定休日 土日祝
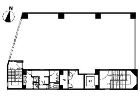
マトリクス・ツービル 8階
物件情報
| 所在地 | 東京都渋谷区渋谷1丁目24-6 |
|---|---|
| 最寄駅 | JR山手線 渋谷駅 1分 |
| 竣工 | 1978年9月 |
| 階数 | 地上9階建て |
| エレベーター | 1基 |
賃貸条件
| 募集区画 | 8階 |
|---|---|
| 賃料(共益費) | 1,734,900円(260,234円) |
| 敷金/礼金 | 12ヶ月/- |
| 保証金 /敷引/償却 | なし |
| 面積 | 57.83坪 |
| 入居条件 | 即入居 |
| 所在地 | 東京都渋谷区渋谷1丁目24-6 |
|---|---|
| 最寄駅 | JR山手線 渋谷駅 1分 |
| 竣工 | 1978年9月 |
| 階数 | 地上9階建て |
| エレベーター | 1基 |
| 募集区画 | 8階 |
|---|---|
| 賃料(共益費) | 1,734,900円(260,234円) |
| 敷金/礼金 | 12ヶ月/- |
| 保証金 /敷引/償却 | なし |
| 面積 | 57.83坪 |
| 入居条件 | 即入居 |