03-6264-1890
受付時間 9:00 - 18:30 定休日 土日祝
受付時間 9:00 - 18:30 定休日 土日祝
西新宿MKビル 1階
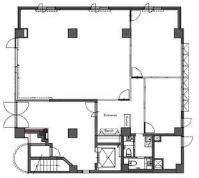
物件情報
| 所在地 | 東京都新宿区西新宿4丁目16-13 |
|---|---|
| 最寄駅 | 都営大江戸線 西新宿五丁目駅 4分 都営大江戸線 都庁前駅 5分 東京メトロ丸ノ内線 西新宿駅 11分 |
| 竣工 | 1992年9月 |
| 階数 | 地上5階建て |
| エレベーター | 1基 |
賃貸条件
| 募集区画 | 1階 |
|---|---|
| 賃料(共益費) | 920,480円(賃料に含む) |
| 敷金/礼金 | -/なし |
| 保証金 /敷引/償却 | 2ヶ月/-/なし |
| 面積 | 41.84坪 |
| 入居条件 | 2026年2月上旬 |