03-6264-1890
受付時間 9:00 - 18:30 定休日 土日祝
受付時間 9:00 - 18:30 定休日 土日祝
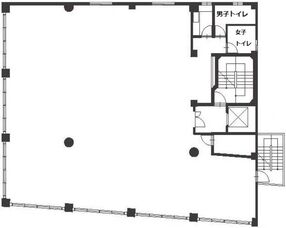
富士ビル(芝大門2丁目11-1) 2階
物件情報
| 所在地 | 東京都港区芝大門2丁目11-1 |
|---|---|
| 最寄駅 |
都営大江戸線 大門駅 4分 JR山手線 浜松町駅 5分 都営三田線 芝公園駅 6分 |
| 竣工 | 1973年 |
| 階数 | 地上7階建て |
| エレベーター | 1基 |
賃貸条件
| 募集区画 | 2階 |
|---|---|
| 賃料 (共益費) | 1,086,875円(300,625円) |
| 敷金 /礼金 | 8ヶ月/なし |
|
保証金
/敷引/償却 |
-/-/1ヶ月 |
| 面積 | 92.5坪 |
| 入居条件 | 2026年4月中旬 |