03-6264-1890
受付時間 9:00 - 18:30 定休日 土日祝
受付時間 9:00 - 18:30 定休日 土日祝
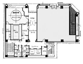
オーキッドプレイス八丁堀(旧:ヒューリック八丁堀第二ビル) 1階
物件情報
| 所在地 | 東京都中央区八丁堀4丁目10-4 |
|---|---|
| 最寄駅 |
JR京葉線 八丁堀駅 1分 |
| 竣工 | 1990年7月 |
| 階数 | 地上8階 / 地下1階 |
| エレベーター | 2基 |
賃貸条件
| 募集区画 | 1階 |
|---|---|
| 賃料 (共益費) | 相談(賃料に含む) |
| 敷金 /礼金 | 10ヶ月/- |
|
保証金
/敷引/償却 |
なし |
| 面積 | 52.22坪 |
| 入居条件 | 2026年5月上旬 |