03-6264-1890
受付時間 9:00 - 18:30 定休日 土日祝
受付時間 9:00 - 18:30 定休日 土日祝
八重洲山川ビル 5階
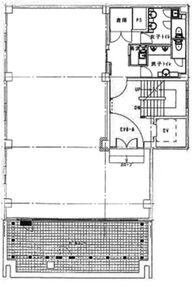
物件情報
| 所在地 | 東京都中央区日本橋3丁目3-3 |
|---|---|
| 最寄駅 | 東京メトロ銀座線 日本橋駅 2分 JR山手線 東京駅 3分 |
| 竣工 | 1969年3月 |
| 階数 | 地上6階建て |
| エレベーター | 1基 |
賃貸条件
| 募集区画 | 5階 |
|---|---|
| 賃料(共益費) | 1,005,400円(137,100円) |
| 敷金/礼金 | 8ヶ月/なし |
| 保証金 /敷引/償却 | -/-/なし |
| 面積 | 45.7坪 |
| 入居条件 | 2026年1月下旬 |