03-6264-1890
受付時間 9:00 - 18:30 定休日 土日祝
受付時間 9:00 - 18:30 定休日 土日祝
TATE神田ビル(テイト神田ビル) 3階
物件情報
| 所在地 | 東京都千代田区神田司町2丁目17-14 |
|---|---|
| 最寄駅 | 東京メトロ丸ノ内線 淡路町駅 2分 都営新宿線 小川町駅 2分 JR中央線(快速) 御茶ノ水駅 2分 JR中央線(快速) 神田駅 5分 |
| 竣工 | 1980年4月 |
| 階数 | 地上6階建て |
| エレベーター | 1基 |
賃貸条件
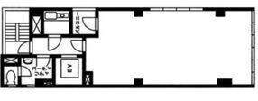
| 募集区画 | 3階 |
|---|---|
| 賃料(共益費) | 243,600円(46,400円) |
| 敷金/礼金 | 8ヶ月/なし |
| 保証金 /敷引/償却 | -/-/なし |
| 面積 | 23.2坪 |
| 入居条件 | 2026年1月下旬 |