03-6264-1890
受付時間 9:00 - 18:30 定休日 土日祝
受付時間 9:00 - 18:30 定休日 土日祝
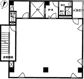
芝パークビル 3階
物件情報
| 所在地 | 東京都港区浜松町2丁目1-15 |
|---|---|
| 最寄駅 | JR山手線 浜松町駅 4分 都営大江戸線 大門駅 1分 |
| 竣工 | 1989年12月 |
| 階数 | 地上10階 / 地下1階 |
| エレベーター | 1基 |
賃貸条件
| 募集区画 | 3階 |
|---|---|
| 賃料(共益費) | 442,000円(65,000円) |
| 敷金/礼金 | 10ヶ月/なし |
| 保証金 /敷引/償却 | -/-/2ヶ月 |
| 面積 | 26.0坪 |
| 入居条件 | 2026年2月上旬 |