03-6264-1890
受付時間 9:00 - 18:30 定休日 土日祝
受付時間 9:00 - 18:30 定休日 土日祝
ハーモニータワー 26階
物件情報
| 所在地 | 東京都中野区本町1丁目32-2 |
|---|---|
| 最寄駅 |
東京メトロ丸ノ内線 中野坂上駅 1分 都営大江戸線 西新宿五丁目駅 12分 JR中央・総武線 東中野駅 15分 |
| 竣工 | 1997年3月 |
| 階数 | 地上29階 / 地下2階 |
| エレベーター | 17基 |
賃貸条件
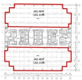
| 募集区画 | 26階 |
|---|---|
| 賃料 (共益費) | -(賃料に含む) |
| 敷金 /礼金 | 相談/- |
|
保証金
/敷引/償却 |
-/-/なし |
| 面積 | 402.62坪 |
| 入居条件 | 2026年12月上旬 |