03-6264-1890
受付時間 9:00 - 18:30 定休日 土日祝
受付時間 9:00 - 18:30 定休日 土日祝
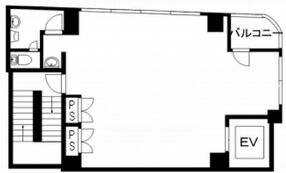
JP浜町ビル 3階
物件情報
| 所在地 | 東京都中央区日本橋浜町2丁目23-5 |
|---|---|
| 最寄駅 | 都営新宿線 浜町駅 4分 東京メトロ半蔵門線 水天宮前駅 5分 都営浅草線 人形町駅 7分 |
| 竣工 | 1991年7月 |
| 階数 | 地上10階建て |
| エレベーター | 1基 |
賃貸条件
| 募集区画 | 3階 |
|---|---|
| 賃料(共益費) | 248,300円(賃料に含む) |
| 敷金/礼金 | 6ヶ月/なし |
| 保証金 /敷引/償却 | -/-/2ヶ月 |
| 面積 | 19.1坪 |
| 入居条件 | 2026年1月上旬 |