03-6264-1890
受付時間 9:00 - 18:30 定休日 土日祝
受付時間 9:00 - 18:30 定休日 土日祝
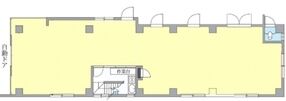
矢後ビル 1階
物件情報
| 所在地 | 東京都渋谷区千駄ヶ谷1丁目5-1 |
|---|---|
| 最寄駅 | JR中央・総武線 千駄ケ谷駅 5分 都営大江戸線 国立競技場駅 5分 東京メトロ副都心線 北参道駅 6分 |
| 竣工 | 1970年5月 |
| 階数 | 地上5階建て |
| エレベーター | なし |
賃貸条件
| 募集区画 | 1階 |
|---|---|
| 賃料(共益費) | 相談(賃料に含む) |
| 敷金/礼金 | 1ヶ月/なし |
| 保証金 /敷引/償却 | -/-/なし |
| 面積 | 39.93坪 |
| 入居条件 | 2026年1月上旬 |