03-6264-1890
受付時間 9:00 - 18:30 定休日 土日祝
受付時間 9:00 - 18:30 定休日 土日祝
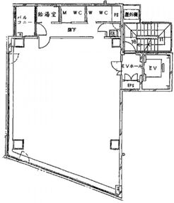
東洋須田町ビル 4階
物件情報
| 所在地 | 東京都千代田区神田須田町1丁目5 |
|---|---|
| 最寄駅 |
東京メトロ銀座線 神田駅 1分 東京メトロ丸ノ内線 淡路町駅 3分 都営新宿線 小川町駅 3分 JR山手線 神田駅 5分 |
| 竣工 | 1997年8月 |
| 階数 | 地上9階建て |
| エレベーター | 1基 |
賃貸条件
| 募集区画 | 4階 |
|---|---|
| 賃料 (共益費) | -(107,695円) |
| 敷金 /礼金 | 10ヶ月/なし |
|
保証金
/敷引/償却 |
-/-/なし |
| 面積 | 30.77坪 |
| 入居条件 | 2026年5月上旬 |