03-6264-1890
受付時間 9:00 - 18:30 定休日 土日祝
受付時間 9:00 - 18:30 定休日 土日祝
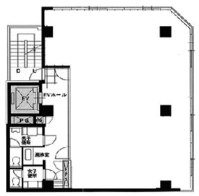
田中ビル(西新宿) 2階
物件情報
| 所在地 | 東京都新宿区西新宿8丁目1-14 |
|---|---|
| 最寄駅 | 東京メトロ丸ノ内線 西新宿駅 2分 JR山手線 新宿駅 10分 |
| 竣工 | 1993年3月 |
| 階数 | 地上4階建て |
| エレベーター | 1基 |
賃貸条件
| 募集区画 | 2階 |
|---|---|
| 賃料(共益費) | 484,770円(74,580円) |
| 敷金/礼金 | 8ヶ月/2ヶ月 |
| 保証金 /敷引/償却 | -/-/なし |
| 面積 | 37.29坪 |
| 入居条件 | 即入居 |