03-6264-1890
受付時間 9:00 - 18:30 定休日 土日祝
受付時間 9:00 - 18:30 定休日 土日祝
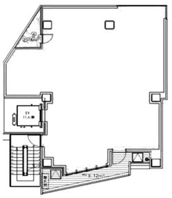
Harmonyビル 5階
物件情報
| 所在地 | 東京都新宿区高田馬場3丁目12 |
|---|---|
| 最寄駅 | JR山手線 高田馬場駅 5分 |
| 竣工 | 2026年2月 |
| 階数 | 地上10階建て |
| エレベーター | 1基 |
賃貸条件
| 募集区画 | 5階 |
|---|---|
| 賃料(共益費) | 617,320円(賃料に含む) |
| 敷金/礼金 | 6ヶ月/- |
| 保証金 /敷引/償却 | -/-/なし |
| 面積 | 28.06坪 |
| 入居条件 | 2026年3月上旬 |
| 所在地 | 東京都新宿区高田馬場3丁目12 |
|---|---|
| 最寄駅 | JR山手線 高田馬場駅 5分 |
| 竣工 | 2026年2月 |
| 階数 | 地上10階建て |
| エレベーター | 1基 |
| 募集区画 | 5階 |
|---|---|
| 賃料(共益費) | 617,320円(賃料に含む) |
| 敷金/礼金 | 6ヶ月/- |
| 保証金 /敷引/償却 | -/-/なし |
| 面積 | 28.06坪 |
| 入居条件 | 2026年3月上旬 |