03-6264-1890
受付時間 9:00 - 18:30 定休日 土日祝
受付時間 9:00 - 18:30 定休日 土日祝
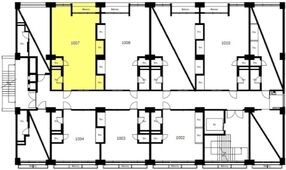
岡崎ビル 10階1007
物件情報
| 所在地 | 東京都渋谷区渋谷2丁目14-13 |
|---|---|
| 最寄駅 | JR山手線 渋谷駅 4分 |
| 竣工 | 1961年1月 |
| 階数 | 地上10階 / 地下1階 |
| エレベーター | 1基 |
賃貸条件
| 募集区画 | 10階1007 |
|---|---|
| 賃料(共益費) | 320,670円(賃料に含む) |
| 敷金/礼金 | 4ヶ月/なし |
| 保証金 /敷引/償却 | -/-/1ヶ月 |
| 面積 | 15.27坪 |
| 入居条件 | 即入居 |