03-6264-1890
受付時間 9:00 - 18:30 定休日 土日祝
受付時間 9:00 - 18:30 定休日 土日祝
ACN築地242ビル 地下1階
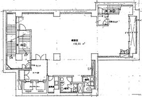
物件情報
| 所在地 | 東京都中央区築地2丁目4-2 |
|---|---|
| 最寄駅 |
東京メトロ有楽町線 新富町駅 1分 東京メトロ日比谷線 築地駅 2分 |
| 竣工 | 1991年6月 |
| 階数 | 地上9階建て |
| エレベーター | 2基 |
賃貸条件
| 募集区画 | 地下1階 |
|---|---|
| 賃料 (共益費) | 相談(賃料に含む) |
| 敷金 /礼金 | 8ヶ月/- |
|
保証金
/敷引/償却 |
-/-/1ヶ月 |
| 面積 | 53.0坪 |
| 入居条件 | 2026年6月上旬 |