03-6264-1890
受付時間 9:00 - 18:30 定休日 土日祝
受付時間 9:00 - 18:30 定休日 土日祝
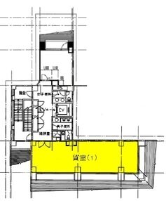
名鉄不動産竹橋ビル 7階1
物件情報
| 所在地 | 東京都千代田区神田錦町3丁目15 |
|---|---|
| 最寄駅 |
東京メトロ東西線 竹橋駅 3分 東京メトロ半蔵門線 神保町駅 7分 都営新宿線 小川町駅 7分 東京メトロ丸ノ内線 大手町駅 7分 東京メトロ千代田線 新御茶ノ水駅 7分 |
| 竣工 | 1992年10月 |
| 階数 | 地上7階 / 地下1階 |
| エレベーター | 1基 |
賃貸条件
| 募集区画 | 7階1 |
|---|---|
| 賃料 (共益費) | 相談(相談) |
| 敷金 /礼金 | 相談/- |
|
保証金
/敷引/償却 |
なし |
| 面積 | 24.3坪 |
| 入居条件 | 2026年3月上旬 |