03-6264-1890
受付時間 9:00 - 18:30 定休日 土日祝
受付時間 9:00 - 18:30 定休日 土日祝
リードシー恵比寿ビル 地下1階
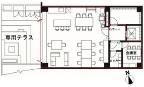
物件情報
| 所在地 | 東京都渋谷区恵比寿南3丁目2-13 |
|---|---|
| 最寄駅 | 東京メトロ日比谷線 恵比寿駅 4分 東急東横線 代官山駅 5分 東京メトロ日比谷線 中目黒駅 9分 |
| 竣工 | 1993年8月 |
| 階数 | 地上4階 / 地下1階 |
| エレベーター | 1基 |
賃貸条件
| 募集区画 | 地下1階 |
|---|---|
| 賃料(共益費) | 1,270,000円(賃料に含む) |
| 敷金/礼金 | なし/なし |
| 保証金 /敷引/償却 | -/-/なし |
| 面積 | 28.29坪 |
| 入居条件 | 2026年2月上旬 |