03-6264-1890
受付時間 9:00 - 18:30 定休日 土日祝
受付時間 9:00 - 18:30 定休日 土日祝
渋谷TKビル 8階
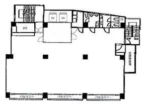
物件情報
| 所在地 | 東京都渋谷区渋谷3丁目13-11 |
|---|---|
| 最寄駅 | JR山手線 渋谷駅 4分 東京メトロ副都心線 渋谷駅 5分 東京メトロ銀座線 渋谷駅 7分 |
| 竣工 | 1991年7月 |
| 階数 | 地上10階建て |
| エレベーター | 2基 |
賃貸条件
| 募集区画 | 8階 |
|---|---|
| 賃料(共益費) | 1,292,880円(161,610円) |
| 敷金/礼金 | 10ヶ月/1ヶ月 |
| 保証金 /敷引/償却 | -/-/10% |
| 面積 | 53.87坪 |
| 入居条件 | 2026年2月上旬 |