03-6264-1890
受付時間 9:00 - 18:30 定休日 土日祝
受付時間 9:00 - 18:30 定休日 土日祝
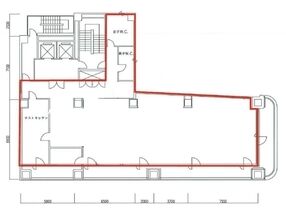
五反田佑気ビル 3階
物件情報
| 所在地 | 東京都品川区西五反田8丁目2-8 |
|---|---|
| 最寄駅 | 東急池上線 大崎広小路駅 3分 JR山手線 五反田駅 6分 |
| 竣工 | 1991年7月 |
| 階数 | 地上10階建て |
| エレベーター | 2基 |
賃貸条件
| 募集区画 | 3階 |
|---|---|
| 賃料(共益費) | 相談(相談) |
| 敷金/礼金 | 相談/- |
| 保証金 /敷引/償却 | -/-/なし |
| 面積 | 72.6坪 |
| 入居条件 | 2026年2月上旬 |
| 所在地 | 東京都品川区西五反田8丁目2-8 |
|---|---|
| 最寄駅 | 東急池上線 大崎広小路駅 3分 JR山手線 五反田駅 6分 |
| 竣工 | 1991年7月 |
| 階数 | 地上10階建て |
| エレベーター | 2基 |
| 募集区画 | 3階 |
|---|---|
| 賃料(共益費) | 相談(相談) |
| 敷金/礼金 | 相談/- |
| 保証金 /敷引/償却 | -/-/なし |
| 面積 | 72.6坪 |
| 入居条件 | 2026年2月上旬 |