03-6264-1890
受付時間 9:00 - 18:30 定休日 土日祝
受付時間 9:00 - 18:30 定休日 土日祝
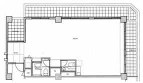
HARAJUKU PLAZA(原宿プラザ) 4階404
物件情報
| 所在地 | 東京都渋谷区千駄ヶ谷3丁目16-1 |
|---|---|
| 最寄駅 |
東京メトロ副都心線 北参道駅 5分 JR山手線 原宿駅 8分 JR中央・総武線 千駄ケ谷駅 10分 |
| 竣工 | 1971年2月 |
| 階数 | 地上5階 / 地下1階 |
| エレベーター | 1基 |
賃貸条件
| 募集区画 | 4階404 |
|---|---|
| 賃料 (共益費) | 566,455円(27,273円) |
| 敷金 /礼金 | 3ヶ月/- |
|
保証金
/敷引/償却 |
なし |
| 面積 | 18.66坪 |
| 入居条件 | 即入居 |