03-6264-1890
受付時間 9:00 - 18:30 定休日 土日祝
受付時間 9:00 - 18:30 定休日 土日祝
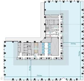
東京ワールドゲート赤坂 赤坂トラストタワー 5階③
物件情報
| 所在地 | 東京都港区赤坂2丁目17-22 |
|---|---|
| 最寄駅 |
東京メトロ銀座線 溜池山王駅 1分 東京メトロ千代田線 国会議事堂前駅 1分 |
| 竣工 | 2024年8月 |
| 階数 | 地上43階 / 地下3階 |
| エレベーター | 20基 |
賃貸条件
| 募集区画 | 5階③ |
|---|---|
| 賃料 (共益費) | 相談(相談) |
| 敷金 /礼金 | 12ヶ月/- |
|
保証金
/敷引/償却 |
なし |
| 面積 | 136.69坪 |
| 入居条件 | 2026年9月上旬 |