03-6264-1890
受付時間 9:00 - 18:30 定休日 土日祝
受付時間 9:00 - 18:30 定休日 土日祝
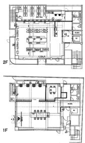
KKYビル 1階~2階
物件情報
| 所在地 | 東京都渋谷区千駄ヶ谷2丁目8-8 |
|---|---|
| 最寄駅 | 東京メトロ副都心線 北参道駅 5分 JR中央・総武線 千駄ケ谷駅 10分 |
| 竣工 | 1990年4月 |
| 階数 | 地上4階建て |
| エレベーター | 1基 |
賃貸条件
| 募集区画 | 1階~2階 |
|---|---|
| 賃料(共益費) | 相談(296,672円) |
| 敷金/礼金 | 12ヶ月/- |
| 保証金 /敷引/償却 | なし |
| 面積 | 92.71坪 |
| 入居条件 | 2026年5月上旬 |