03-6264-1890
受付時間 9:00 - 18:30 定休日 土日祝
受付時間 9:00 - 18:30 定休日 土日祝
麹町鶴屋八幡ビル 2階
物件情報
| 所在地 | 東京都千代田区麹町2-4 |
|---|---|
| 最寄駅 | 東京メトロ半蔵門線 半蔵門駅 2分 東京メトロ有楽町線 麹町駅 3分 |
| 竣工 | 1990年3月 |
| 階数 | 地上10階 / 地下2階 |
| エレベーター | 2基 |
賃貸条件
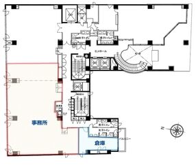
| 募集区画 | 2階 |
|---|---|
| 賃料(共益費) | 相談(255,600円) |
| 敷金/礼金 | 12ヶ月/- |
| 保証金 /敷引/償却 | なし |
| 面積 | 63.9坪 |
| 入居条件 | 2026年4月上旬 |