03-6264-1890
受付時間 9:00 - 18:30 定休日 土日祝
受付時間 9:00 - 18:30 定休日 土日祝
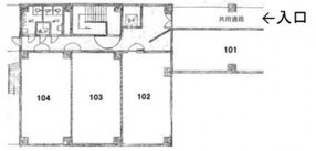
第四文成ビル 1階104
物件情報
| 所在地 | 東京都港区赤坂7丁目10-9 |
|---|---|
| 最寄駅 |
東京メトロ千代田線 赤坂駅 4分 |
| 竣工 | 1981年5月 |
| 階数 | 地上7階建て |
| エレベーター | 1基 |
賃貸条件
| 募集区画 | 1階104 |
|---|---|
| 賃料 (共益費) | 相談(相談) |
| 敷金 /礼金 | 10ヶ月/- |
|
保証金
/敷引/償却 |
-/-/1ヶ月 |
| 面積 | 17.0坪 |
| 入居条件 | 即入居 |
| 所在地 | 東京都港区赤坂7丁目10-9 |
|---|---|
| 最寄駅 |
東京メトロ千代田線 赤坂駅 4分 |
| 竣工 | 1981年5月 |
| 階数 | 地上7階建て |
| エレベーター | 1基 |
| 募集区画 | 1階104 |
|---|---|
| 賃料 (共益費) | 相談(相談) |
| 敷金 /礼金 | 10ヶ月/- |
|
保証金
/敷引/償却 |
-/-/1ヶ月 |
| 面積 | 17.0坪 |
| 入居条件 | 即入居 |