03-6264-1890
受付時間 9:00 - 18:30 定休日 土日祝
受付時間 9:00 - 18:30 定休日 土日祝
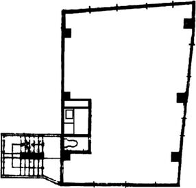
パリスビル 2階
物件情報
| 所在地 | 東京都千代田区富士見1丁目7-10 |
|---|---|
| 最寄駅 | 東京メトロ東西線 飯田橋駅 5分 東京メトロ半蔵門線 九段下駅 9分 JR中央・総武線 水道橋駅 10分 |
| 竣工 | 1986年8月 |
| 階数 | 地上5階建て |
| エレベーター | なし |
賃貸条件
| 募集区画 | 2階 |
|---|---|
| 賃料(共益費) | 200,000円(30,000円) |
| 敷金/礼金 | 6ヶ月/なし |
| 保証金 /敷引/償却 | -/-/2ヶ月 |
| 面積 | 19.06坪 |
| 入居条件 | 即入居 |