03-6264-1890
受付時間 9:00 - 18:30 定休日 土日祝
受付時間 9:00 - 18:30 定休日 土日祝
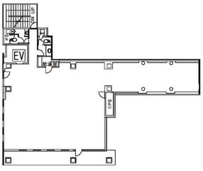
フォーラス神田 5階
物件情報
| 所在地 | 東京都千代田区神田須田町1丁目28 |
|---|---|
| 最寄駅 | 東京メトロ銀座線 神田駅 2分 東京メトロ丸ノ内線 淡路町駅 4分 都営新宿線 小川町駅 5分 JR山手線 秋葉原駅 8分 |
| 竣工 | 1992年6月 |
| 階数 | 地上9階 / 地下1階 |
| エレベーター | 1基 |
賃貸条件
| 募集区画 | 5階 |
|---|---|
| 賃料(共益費) | 1,055,200円(197,850円) |
| 敷金/礼金 | 8ヶ月/なし |
| 保証金 /敷引/償却 | -/-/なし |
| 面積 | 65.95坪 |
| 入居条件 | 2026年6月上旬 |