03-6264-1890
受付時間 9:00 - 18:30 定休日 土日祝
受付時間 9:00 - 18:30 定休日 土日祝
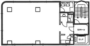
インターアクトビル 3階
物件情報
| 所在地 | 東京都千代田区神田佐久間町3丁目21 |
|---|---|
| 最寄駅 |
JR山手線 秋葉原駅 3分 都営新宿線 岩本町駅 6分 |
| 竣工 | 1987年 |
| 階数 | 地上6階建て |
| エレベーター | 1基 |
賃貸条件
| 募集区画 | 3階 |
|---|---|
| 賃料 (共益費) | 367,875円(40,875円) |
| 敷金 /礼金 | -/1ヶ月 |
|
保証金
/敷引/償却 |
6ヶ月/-/1ヶ月 |
| 面積 | 27.25坪 |
| 入居条件 | 2026年3月上旬 |