03-6264-1890
受付時間 9:00 - 18:30 定休日 土日祝
受付時間 9:00 - 18:30 定休日 土日祝
文芸社新宿御苑ビル 5階
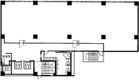
物件情報
| 所在地 | 東京都新宿区新宿1丁目11-7 |
|---|---|
| 最寄駅 |
東京メトロ丸ノ内線 新宿三丁目駅 3分 JR山手線 新宿駅 7分 |
| 竣工 | 1986年3月 |
| 階数 | 地上8階建て |
| エレベーター | 2基 |
賃貸条件
| 募集区画 | 5階 |
|---|---|
| 賃料 (共益費) | 1,159,050円(309,080円) |
| 敷金 /礼金 | 10ヶ月/1ヶ月 |
|
保証金
/敷引/償却 |
-/-/なし |
| 面積 | 77.27坪 |
| 入居条件 | 即入居 |