03-6264-1890
受付時間 9:00 - 18:30 定休日 土日祝
受付時間 9:00 - 18:30 定休日 土日祝
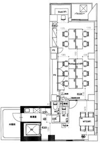
アソルティ日本橋小伝馬町 5階
物件情報
| 所在地 | 東京都中央区日本橋小伝馬町13-5 |
|---|---|
| 最寄駅 |
東京メトロ日比谷線 小伝馬町駅 1分 総武線(快速) 馬喰町駅 4分 都営新宿線 馬喰横山駅 5分 |
| 竣工 | 1996年7月 |
| 階数 | 地上10階建て |
| エレベーター | 1基 |
賃貸条件
| 募集区画 | 5階 |
|---|---|
| 賃料 (共益費) | 331,670円(58,530円) |
| 敷金 /礼金 | 相談/なし |
|
保証金
/敷引/償却 |
-/-/1ヶ月 |
| 面積 | 19.51坪 |
| 入居条件 | 2026年5月上旬 |