03-6264-1890
受付時間 9:00 - 18:30 定休日 土日祝
受付時間 9:00 - 18:30 定休日 土日祝
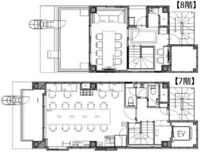
Biz Feel Iwamotocho (旧:神田TYビル) 7階~8階
物件情報
| 所在地 | 東京都千代田区岩本町2丁目7-2 |
|---|---|
| 最寄駅 |
都営新宿線 岩本町駅 4分 東京メトロ日比谷線 小伝馬町駅 5分 JR山手線 神田駅 7分 総武線(快速) 新日本橋駅 7分 総武線(快速) 馬喰町駅 9分 |
| 竣工 | 1991年5月 |
| 階数 | 地上8階 / 地下1階 |
| エレベーター | 1基 |
賃貸条件
| 募集区画 | 7階~8階 |
|---|---|
| 賃料 (共益費) | 648,270円(賃料に含む) |
| 敷金 /礼金 | なし/なし |
|
保証金
/敷引/償却 |
-/-/なし |
| 面積 | 24.01坪 |
| 入居条件 | 即入居 |