03-6264-1890
受付時間 9:00 - 18:30 定休日 土日祝
受付時間 9:00 - 18:30 定休日 土日祝
VORT麹町大通り(旧:Syncs kojimachi) 9階
物件情報
| 所在地 | 東京都千代田区麹町4丁目2-11 |
|---|---|
| 最寄駅 |
東京メトロ有楽町線 麹町駅 2分 東京メトロ半蔵門線 半蔵門駅 7分 JR中央線(快速) 四ツ谷駅 7分 東京メトロ丸ノ内線 四ツ谷駅 9分 東京メトロ南北線 永田町駅 9分 |
| 竣工 | 2024年3月 |
| 階数 | 地上13階建て |
| エレベーター | 1基 |
賃貸条件
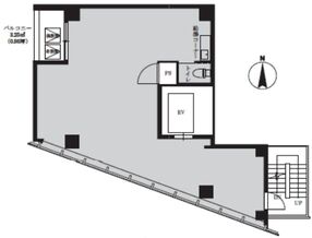
| 募集区画 | 9階 |
|---|---|
| 賃料 (共益費) | 相談(相談) |
| 敷金 /礼金 | 5ヶ月/なし |
|
保証金
/敷引/償却 |
-/-/なし |
| 面積 | 17.59坪 |
| 入居条件 | 即入居 |