03-6264-1890
受付時間 9:00 - 18:30 定休日 土日祝
受付時間 9:00 - 18:30 定休日 土日祝
ACN新宿ビル 5階
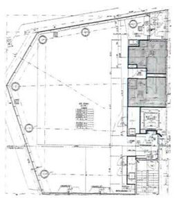
物件情報
| 所在地 | 東京都新宿区新宿2丁目12-8 |
|---|---|
| 最寄駅 |
東京メトロ副都心線 新宿三丁目駅 1分 東京メトロ丸ノ内線 新宿三丁目駅 1分 JR山手線 新宿駅 8分 |
| 竣工 | 2009年4月 |
| 階数 | 地上9階 / 地下1階 |
| エレベーター | 1基 |
賃貸条件
| 募集区画 | 5階 |
|---|---|
| 賃料 (共益費) | 相談(賃料に含む) |
| 敷金 /礼金 | 8ヶ月/なし |
|
保証金
/敷引/償却 |
-/-/1ヶ月 |
| 面積 | 56.51坪 |
| 入居条件 | 2026年5月下旬 |