03-6264-1890
受付時間 9:00 - 18:30 定休日 土日祝
受付時間 9:00 - 18:30 定休日 土日祝
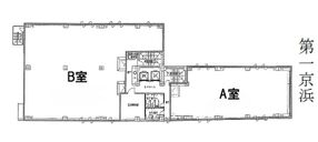
三田三好ビル 3階A
物件情報
| 所在地 | 東京都港区三田3丁目9-7 |
|---|---|
| 最寄駅 |
都営浅草線 泉岳寺駅 2分 JR山手線 田町駅 10分 JR山手線 高輪ゲートウェイ駅 10分 |
| 竣工 | 1985年1月 |
| 階数 | 地上8階 / 地下2階 |
| エレベーター | 2基 |
賃貸条件
| 募集区画 | 3階A |
|---|---|
| 賃料 (共益費) | 1,181,670円(賃料に含む) |
| 敷金 /礼金 | 12ヶ月/なし |
|
保証金
/敷引/償却 |
-/-/なし |
| 面積 | 69.51坪 |
| 入居条件 | 2026年5月上旬 |