03-6264-1890
受付時間 9:00 - 18:30 定休日 土日祝
受付時間 9:00 - 18:30 定休日 土日祝
サトケイビル 1階
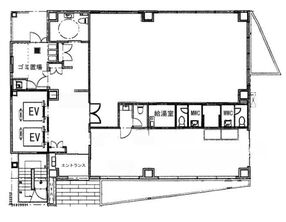
物件情報
| 所在地 | 東京都千代田区岩本町3丁目11-4 |
|---|---|
| 最寄駅 |
東京メトロ日比谷線 秋葉原駅 3分 都営新宿線 岩本町駅 3分 JR山手線 秋葉原駅 5分 |
| 竣工 | 2022年2月 |
| 階数 | 地上9階建て |
| エレベーター | 2基 |
賃貸条件
| 募集区画 | 1階 |
|---|---|
| 賃料 (共益費) | 720,275円(107,275円) |
| 敷金 /礼金 | 8ヶ月/なし |
|
保証金
/敷引/償却 |
-/-/なし |
| 面積 | 30.65坪 |
| 入居条件 | 2026年4月上旬 |