03-6264-1890
受付時間 9:00 - 18:30 定休日 土日祝
受付時間 9:00 - 18:30 定休日 土日祝
レジディア芝浦KAIGAN 1階
物件情報
| 所在地 | 東京都港区海岸3丁目15-5 |
|---|---|
| 最寄駅 | ゆりかもめ 芝浦ふ頭駅 4分 JR山手線 田町駅 11分 |
| 竣工 | 2010年1月 |
| 階数 | 地上12階建て |
| エレベーター | 2基 |
賃貸条件
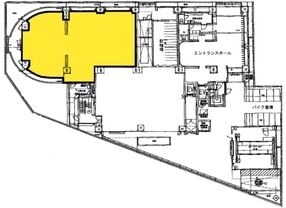
| 募集区画 | 1階 |
|---|---|
| 賃料(共益費) | 570,000円(賃料に含む) |
| 敷金/礼金 | 12ヶ月/1ヶ月 |
| 保証金 /敷引/償却 | -/-/なし |
| 面積 | 56.02坪 |
| 入居条件 | 2026年1月下旬 |